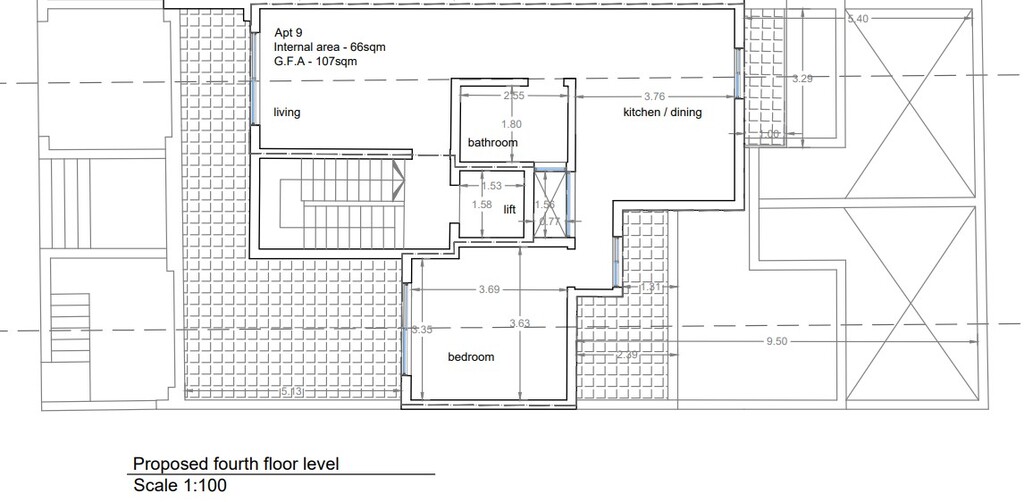
Mellieha – A very well-planned and well-presented, 4 th floor, 107 sqm, 1-bedroom penthouse in Mellieha is now available for sale. Comprising a kitchen/dining, a living area, 1 bedroom, main bathroom, and a large front and back terrace boasting amazing views. To be sold finished (excluding doors and bathrooms). Will make a stunning home and an excellent one-of-a-kind investment!

